Добро пожаловать на http://vipplan.ru

Випплан Лениногорск - это тысячи проектов домов в нашем каталоге!

Вы всегда сможете найти для себя проект дома вашей мечты! Даже если этого не случилось, мы готовы в любую минуту предложить проект индивидуального дома.

Забыли пароль?
Вы еще не регистрировались?

Перейдите по ссылке ниже на страницу регистрации.

Регистрация...

Внимание!!!

В проектную документацию могут быть внесены изменения любой сложности, в соответствии в Вашими пожеланиями!

Полезные статьи

Перекрытия в доме

Перекрытия – одно из важнейших составляющих строящегося дома. Это горизонтальная внутренняя защитная конструкция, разделяющая по уровню смежные помещения дома. По назначению выделяют подвальные, межэтажные и чердачные перекрытия. При проектировании домов и зданий различного назначения, требования к межэтажным перекрытиям определяются их местоположением и функциями разделяемых помещений: надподвальные, межэтажные, чердачные и т.д....

Инженерный раздел архитектурно-строительного проекта

Понятие «комфортный, теплый и уютный дом» включает в себя грамотно рассчитанные и проведенные инженерные сети. Наша компания, имея большой опыт, возьмет на себя весь комплекс мероприятий по проектированию вашего дома, связанные с планировкой, выбором материалов и устройством инженерных систем (инженерный раздел проекта дома: электрика, отопление, водоснабжение и канализация)...

Проекты домов и коттеджей > Каталог проектов домов > Проект небольшого одноэтажного дома с мансардой Vg1315

Проект небольшого одноэтажного дома с мансардой Vg1315

Проект небольшого одноэтажного дома с мансардой
Зарегистрируйтесь

Проект № Vg1315


Техническое описание
Общая площадь: 127.1 м2
Жилая площадь: 84.3 м2
Высота здания: 8.98 м
Размеры дома: 9.04м×10.04м
Кол-во комнат: 6
Цокольный этаж: нет
Гараж: нет
Мансарда: есть

Kонструкция
Фундамент: Ленточный монолитный ж/б
Перекрытия: Сборные ж/б плиты
Материал стен: Кирпич

Архитектурный раздел
Конструктивный раздел
АР+КР - 52 000 (Со скидкой 20%)
Индивидуальный проект одноэтажного дома с мансардой с размерами здания 9,04 x 10,04м. Наружная отделка здания - облицовочный кирпич 2х цветов (светло-бежевый, коричневый). Отделка вентканалов и дымоходов - клинкерная плитка (в цвет светло-бежевого кирпича). Цоколь - отделка клинкерной плиткой (в цвет коричневого кирпича). Фундамент - ленточный, монолитный, ж/б. Наружные стены: POROMAX, ЭПП, облицовочный кирпич. Внутренние стены выполнить из POROMAX. Перегородки: - POROMAX; - Гипсовый блок. Перемычки монолитные и сварные из профиля проката. Пол первого этажа - пол по грунту. Межэтажное перекрытие: сборные ж/б плиты перекрытия. Потолок мансардного этажа - по затяжкам стропильной системы. Крыша скатная. Покрытие - металлочерепица. Лестница - деревянная по металлическому каркасу, выполняется по индивидуальному заказу. Окна - металлопластиковые, выполненные по индивидуальному заказу.
Генплан застройки участка / Паспорт проекта 7000 руб / 10000 руб
Инженерный раздел (полный) 63500 руб
Смета на строительство 31750 руб
Теплотехнический расчет материалов стен Бесплатно
Стоимость проекта со незначительнми изменениями 61800 руб
Стоимость проекта со средними изменениями* 71400 руб
Стоимость проекта со значительными изменениями** 73900 руб

План первого этажа


Бойлерная — 3,38 кв м
С/у — 4,40 кв м
Тамбур — 3,30 кв м
Крыльцо — 6,48 кв м
Гостиная — 15,64 кв м
Гостевая — 12,10 кв м
Кухня — 11,93 кв м
Терраса — 9,04 кв м

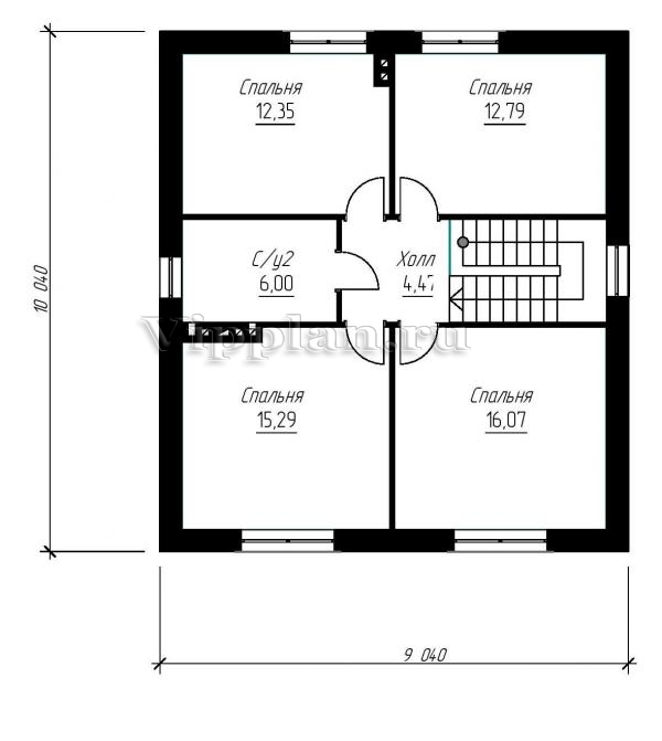
План мансардного этажа


Спальня — 12,35 кв м
Спальня — 12,79 кв м
Спальня — 16,07 кв м
Спальня — 15,29 кв м
Холл — 4,47 кв м
С/у — 6,00 кв м
Проект небольшого одноэтажного дома с мансардой Проект небольшого одноэтажного дома с мансардой Проект небольшого одноэтажного дома с мансардой Проект небольшого одноэтажного дома с мансардой
Внесение изменений и привязка к участку строительства

В любой из проектов от компании VIPplan - Лениногорск по вашему желанию могут быть внесены изменения в материалы стен, материалы наружной отделки дома, а также будет произведена адаптация проекта под конкретный регион строительства (с учетом грунтов региона, геологических особенностей вашего участка и местных климатических условий) - БЕСПЛАТНО !!! (кроме проектов со скидкой и проектов наших партнеров).

Любой из проектов, размещенных на сайте leninogorsk.vipplan.ru мы можем выполнить из требуемых вам строительных материалов: ячеистый бетон (газобетон, пеноблок), керамоблок, кирпич, шлакоблок, бетонный блок, дерево (брус, клееный брус), каркасная технология (деревянный каркас, металлокаркас (ЛСТК)).

Фасад дома и его наружную отделку так же возможно выполнить с применением различных облицовочных материалов: структурной штукатурки, (с утеплителем и без), сайдингом (пластиковый или металлосайдинг), фиброплитами, кирпича.

 
6 Избранные
проекты

Доставка проектов по России: Москва (Московская область), Санкт-Петербург (Ленинградская область), Краснодар, Ростов-на-Дону, Ставрополь, Сочи, Волгоград, Новосибирск, Белгород, Брянск, Воронеж, Саратов, Хабаровск, Астрахань, Нальчик, Владикавказ, Екатеринбург, Тюмень, Самара, Нижний Новгород, Казань, Пермь, Уфа, Челябинск, Красноярск, Ханты-Мансийск, Иркутск, Курган, Оренбург, Омск, Томск, Барнаул, Новокузнецк, Кемерово, Абакан, Чита, Якутск, Южно-Сахалинск, Петропавловск-Камчатский и страны ближнего зарубежья: Белоруссия, Украина, Казахстан